Zeetjalk Hendrika met vaste ligplaats in Gorinchem

In de mooie vestingstad Gorinchem bieden we, waar de Linge de stad binnengaat, het woonschip Hendrika aan. Deze zeetjalk is verrassend ruim ondanks zijn compacte afmetingen waarin een prettige woonkamer, 3 slaapkamers, badkamer, waskamer en een woonkeuken in de roef zijn gevestigd.

Op het gebied van techniek is het goed voor elkaar met onder andere zonnepanelen, elektrische lieren en een airco. Het schip mag ook nog varen en is onlangs door de huidige eigenaren meegenomen naar een zeiltocht over het Ijsselmeer, het wad en Sail Amsterdam. De vestingstad Gorinchem is van alle gemakken voorzien en gemakkelijk te voet te verkennen vanaf de ligplaats.

Bent u nieuwsgierig geworden naar dit veelzijdige woonschip met een verrassende binnenruimte, kom dan zeker eens op de Hendrika in Gorinchem kijken.

K

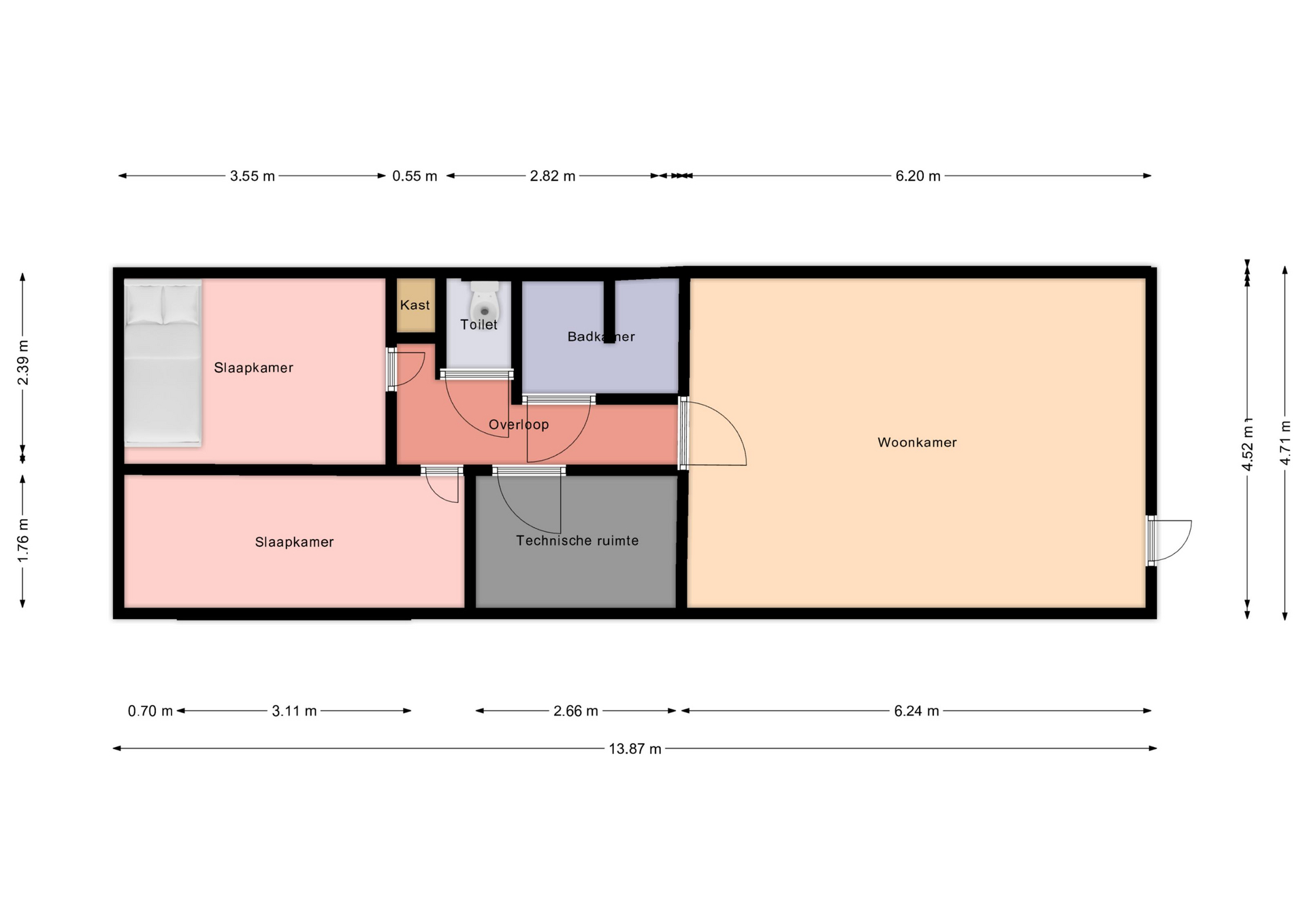
Indeling

Vanaf het achterdek wordt de roef betreden waarin een compacte woonkeuken is gevestigd met een hoekkeuken voorzien van alle gemakken en een eethoek met een vaste bank. Vanaf de eethoek heb je een prachtig uitzicht over de Linge en voorbijvarende schepen. Van hieruit is het achteronder bereikbaar waarin de masterbedroom is gevestigd met een vast bed en veel bergruimte.

Vanuit de roef is een doorgang gemaakt naar het voormalige laadruim waar je allereerst in de ruime woonkamer terechtkomt. Hierin is een tweede eethoek, kantoor en ruime zitgelegenheid rond de houtkachel. De woonkamer is voorzien van een hardhouten vloer verdeeld over diverse panelen en door de vele dakramen is het erg licht binnen. De vaste kasten maken het geheel af.
Verder naar voren kom je langs de badkamer, waskamer (3de slaapkamer), toilet en 2 slaapkamers naast elkaar voorin het schip.

Van buitenaf is de technische ruimte(machinekamer) en voorroef bereikbaar. Deze laatste biedt de mogelijkheid om veel zaken te herbergen.

K

Omgeving

Het woonschip de Hendrika is afgemeerd in de museumhaven van Gorinchem met nog 5 andere (woon)schepen. De rivier de Linge komt hier de vestingstad Gorinchem binnen waardoor de directe omgeving erg groen aanvoelt. De molen Nooit Volmaakt staat op de andere oever aan de Bagijnerwal. De vestingwallen bieden de mogelijkheid om rondom de stad te lopen in het groen.

Gorinchem maakt onderdeel uit van de Unesco werelderfgoed: De Hollandsche Waterlinies. Gorinchem is de grootste meest intacte vesting van Nederland. Door de ligging aan de Linge, Merwede en het Merwedekanaal is de vesting omgeven van waterwegen en maken onderdeel uit van de vestingwerken.

De stad Gorinchem is voorzien van alle gemakken en de grotere steden Dordrecht, Breda en Utrecht zijn perfect via de trein of snelwegen(A27/A15) te bereiken. Door het behoud van de binnenstad voelt Gorinchem erg knus en gezellig aan.

K

Enkele belangrijke kenmerken

• Bouwjaar 1902 te Zwartsluis
• Afmetingen van circa 23,07 x 4,72 meter
• Diepgang ongeveer 85 centimeter
• Woonoppervlakte van circa 80 m2
• Laatste vlakdikterapport uit 2019
• CVO/CBB geldig tot 2027
• Badkamer voorzien van een wastafelmeubel en douchecabine in composiet (2019)
• Toiletruimte voorzien van een vrijdragend toilet in composiet (2019)
• Keuken voorzien van Quooker, 4 pits inductie kookplaat, combi oven, afwasmachine en vrijstaande koelkast.
• Webasto airco/verwarming
• Houtkachel in de woonkamer
• Post Marine heating CV-ketel (diesel) voor de centrale verwarming en warm water in de badkamer
• 3.200 liter watertank met een Dab mini 3 hydrofoor
• 250 liter vuilwatertank met een Homa rioolpomp
• Daf 575 hoofdmotor
• Vetus 24 volt boegschroef met extra running time
• Lister Petter generator van 10 kva
• Totaal 1.800 liter diesel verdeeld over 3 tanks
• 6 zonnepanelen, totaal 2100 wp
• Victron Quattro II 24/5000/70
• 640ah 24 volt tractieset
• Gaffel-kotter getuigd met kluiverboom en zeilen
• Electrische anker/mastlier en electrische bakstag/zwaardlieren
• De ligplaats is voorzien van stroom, water, riolering, kabel en glasvezel
• Liggeld circa € 2.000,- per jaar
• Energielabel E

De zeetjalk Hendrika met ligplaats bij Gorinchem staat te koop voor € 345.000,- k.k.

K

Techniek

De huidige eigenaren zijn sinds 2006 eigenaar van de Tjalk Hendrika. Zij hebben stelselmatig verbeteringen doorgevoerd wat het schip zeer compleet maakt. In 2019 is het schip uit het water geweest voor de nodige controles en verbeteringen en het CBB loopt tot 2027.
Het woonschip is goed geïsoleerd en voor de verwarming heb je de keuze uit een diesel cv, houtkachel maar ook de airco unit. De zonnepanelen in combinatie met het accupakket en omvormer maken het geheel zelfstandig.
K

Aanvullende informatie

Over het woonschip hoeft geen overdrachtsbelasting te worden voldaan. Uw notaris kan u hier verder over informeren.

Aangezien dit woonschip is ingeschreven in het kadaster en een vaste ligplaats heeft behoort een hypotheek tot een van de mogelijkheden. Op dit moment zou u hiervoor bijvoorbeeld bij de Rabobank terecht kunnen. Uw hypotheekadviseur kan u over de mogelijkheden nader informeren.

Onze beschrijvingen zijn met de grootste zorg samengesteld, maar hieraan kunnen geen rechten worden ontleend. Het staat u vrij de afmetingen en gegevens te controleren tijdens een bezichtiging.

Steeds meer gemeenten stellen een zelfbewoningsplicht in voor toekomstige eigenaren. Neem hiervoor contact op met de gemeente of dit voor u als toekomstige eigenaar ook van toepassing is.