Woonark Ut Draakje zonder ligplaats
Beschikt u over een ligplaats van ruim 13 x 5 meter en bent u op zoek naar een instapklare woonark? Dan nodigen wij u van harte uit om de woonark Ut Draakje in Amsterdam te bekijken.
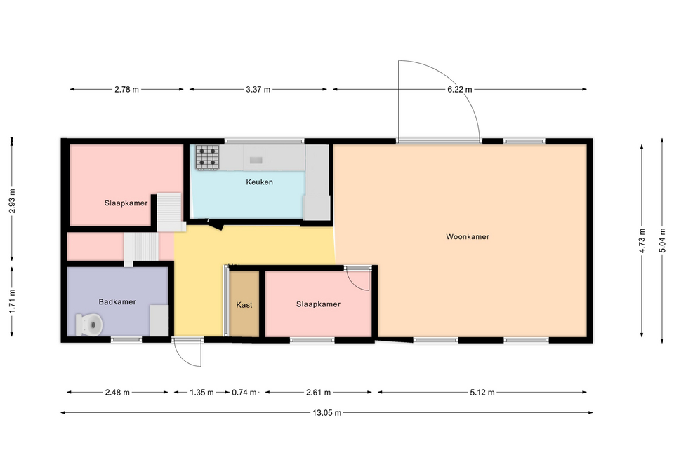
Indeling
Rechtsaf is de open keuken met vrij uitzicht over het water en daar tegenover de ruime slaapkamer. Over de volle breedte tref je dan de woonkamer met veel licht en schuifpui naar de waterzijde. Hier vallen de binnenhoogte van de woonark, met ruim 2,6 meter, en de open balken goed op. Naast de cv-installatie is er ook een houtkachel voor extra warmte en sfeer.
Door de gehele woonark ligt een mooie houten vloer, welke in combinatie met de hoogte en vele ramen een erg prettig woonverblijf creëert.
De badkamer is onlangs gerenoveerd en voorzien van vloerverwarming, inloopdouche met verlichting in de glazen wanden, vrij hangend toilet en wastafelmeubel.
De keuken is eenvoudig, maar door het grote werkblad en de ramen is het een erg fijne kookplek.
De indeling is eenvoudig aan te passen naar eigen wensen. Zo kan de keuken gewijzigd worden in een ruime extra slaapkamer en er kan voor een open keuken gekozen worden in de woonkamer.
De woonark Ut Draakje zonder ligplaats staat te koop voor € 75.000,- k.k.
Techniek
Het geheel is aan de buitenzijde onderhoudsarm met Keraliet buitenbekleding, kunststof kozijnen met dubbelglas, Trespa boeiboorden en bitumendakbedekking.
Enkele belangrijke kenmerken
• Bouwjaar betonnen casco: 1971 gebouwd in Zaandam
• Bouwjaar opbouw: 2006 door Benecke woonbotenservice
• Afmetingen 13 x 5 meter
• Hoogte boven waterlijn circa 3,5 meter
• Woonoppervlakte: 60m²
• Ruime stahoogte van minimaal 2,6 meter
• Nieuwe badkamer met inloopdouche, badkamermeubel, elektrische vloerverwarming en vrij hangend toilet
• Keuken voorzien van een gasfornuis, vaatwasser en ruimte voor een vrijstaande koelkast
• Kunststof kozijnen met dubbelglas
• Keraliet buitenbekleding
• Rioolpomp KSB Mini Compacta
• Intergas hr cv ketel
• Moderne meterkast met automatische zekeringen
• Energielabel D
• Woonark is in het winter/voorjaar 2026 beschikbaar

Aanvullende informatie
Onze beschrijvingen zijn met de grootste zorg samengesteld, maar hieraan kunnen geen rechten worden ontleend. Het staat u vrij de afmetingen en gegevens te controleren tijdens een bezichtiging.